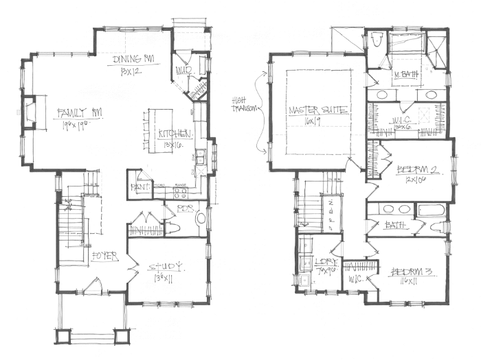
Narrow Lot
Model:
Narrow Lot ||
Sq. Ft.
2,450
<
Show Floor Plan
>
Download Plan
Close