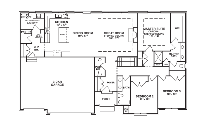
The Alexis
Model:
The Alexis ||
Sq. Ft.
1,907
<
Show Floor Plan
>
Download Plan
Close