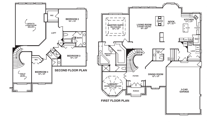
The Bloomington II
Model:
The Bloomington II ||
Sq. Ft.
3,783
<
Show Floor Plan
>
Download Plan
Close