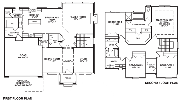
The Nottingham
Model:
The Nottingham ||
Sq. Ft.
2,938
<
Show Floor Plan
>
Download Plan
Close