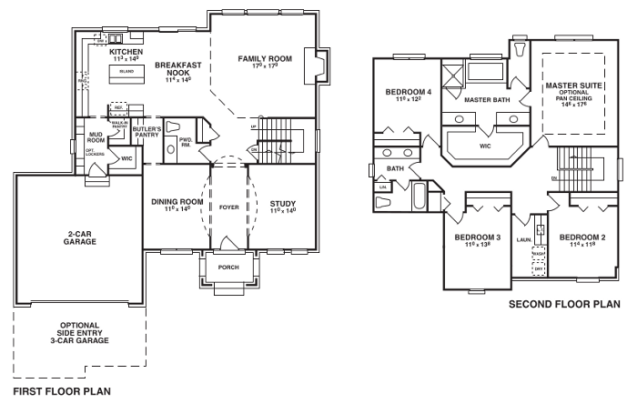
The Sherwood
Model:
The Sherwood ||
Sq. Ft.
2,857
<
Show Floor Plan
>
Download Plan
Close