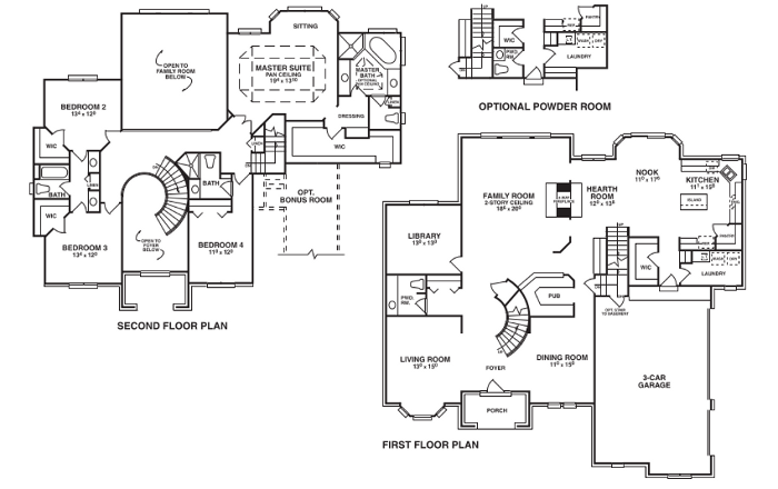
The Wellington
Model:
The Wellington ||
Sq. Ft.
4,021
<
Show Floor Plan
>
Download Plan
Close