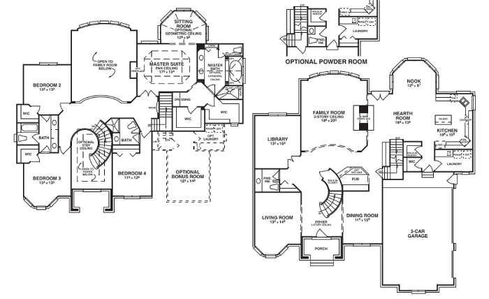
The Wellington II
Model:
The Wellington II ||
Sq. Ft.
4,238
<
Show Floor Plan
>
Download Plan
Close